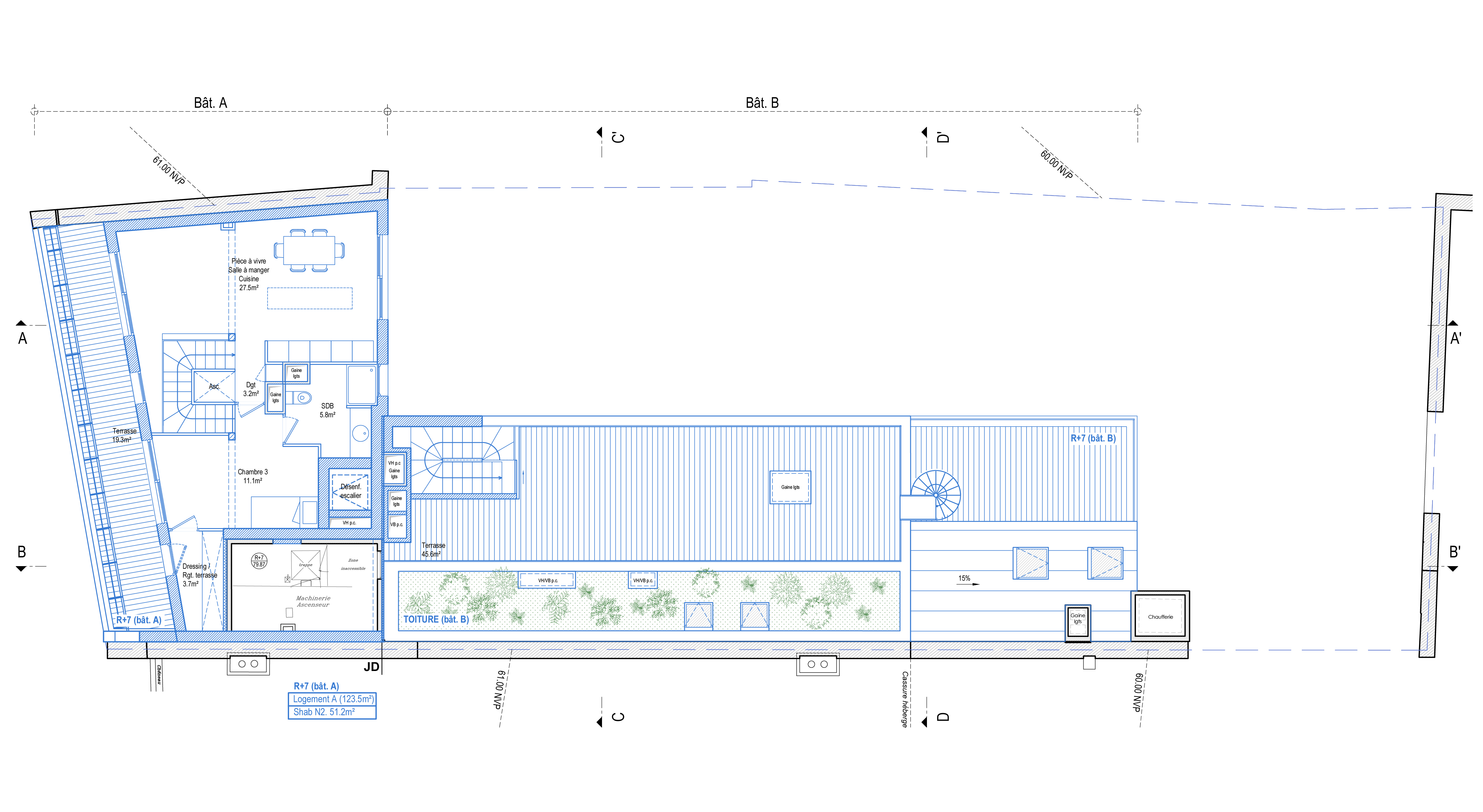
Fossés-Saint-Jacques
Surélévation d'un immeuble des années 1970 pour création de deux logements à
.
Paris, France (70)
.Type : Mission partielle PC
.Calendrier : Janvier 2021 - Juin 2021
.Surface : 250 m²
.Budget : 700 000 € HT







