Extension Au-Clair
Extension d’un appartement parisien,
surélévation d’un immeuble des années 70
surélévation d’un immeuble des années 70
Le projet se situe dans le 17ème arrondissement de Paris. Il consiste en la surélévation d'un immeuble parisien des années 70, par l'extension de l'appartemment du 6ème étage sur la toiture-terrasse existante. Les propriétaires souhaitent en effet construire cette extension afin d'avoir une chambre en plus et une pièce salon/salle-à-manger d'une superficie suffisante pour leur famille.
La surface extérieure existante définie par la toiture-terrasse est considérable. En effet, elle est actuellement de 110m² environ. La répartition des espaces de ce logement est ainsi déséquilibrée, on a d'un côté un espace intérieur d'une superficie limitée pour une famille d'un couple avec 2 enfants, et un espace extérieur à l'inverse trop généreux. L'intention du projet est ainsi de tirer parti de cette surface extérieure existante et d'en réintégrer une partie en surface intérieure pour l'appartement.
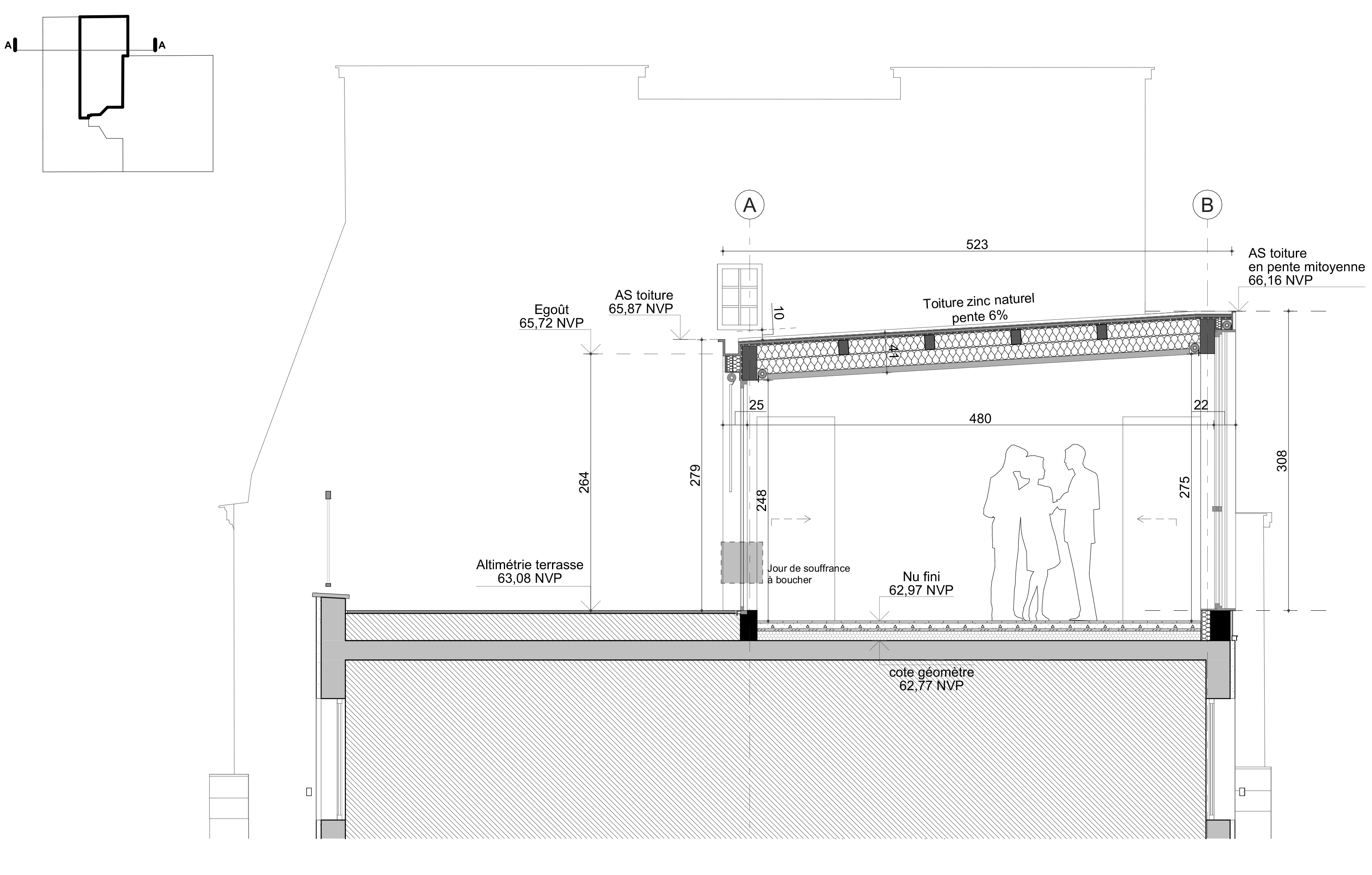
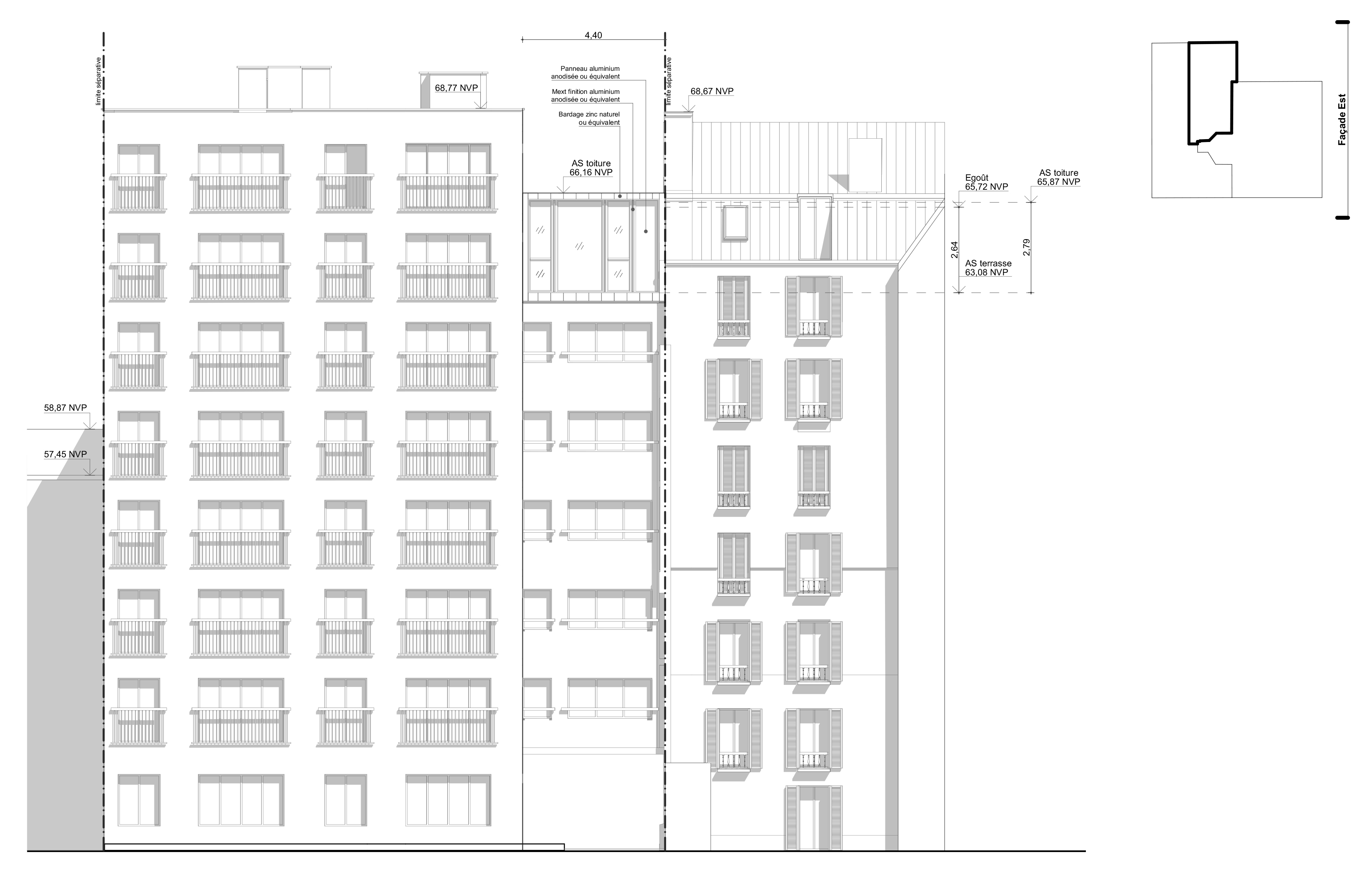
Le contexte urbain est propice à la volumétrie du projet. La toiture-terrasse constitue une dent creuse dans le paysage urbain avoisinant le site du projet rue Clairaut. Elle est bordée par un mur d'héberge d'une hauteur conséquente (+5,66m entre le plancher de la terrasse et le faîtage de l'héberge) sur son côté au Nord.
- Le premier principe d'intégration du projet est de prendre appui sur ce mur mitoyen.
- Le second principe est de définir la hauteur du projet en fonction de la forme de la toiture du bâtiment mitoyen. En effet, nous venons prendre le point de brisure du toit en pente du bâtiment voisin comme point de référence (+3,12m entre le plancher de la terrasse et ce point significatif) définissant la hauteur de gabarit du projet.
- Le troisième principe est de respecter le bâtiment existant où s'implante la surélévation, et de venir s'aligner avec l'élément vertical très prononcé défini par la cheminée de ventilation existante.
La structure est imaginée en bois avec une poutre principale de reprise en béton venant s’appuyer sur le bâtiment existant. Le toit de l’extension est conçu en pente avec un revêtement en zinc naturel, les menuiseries extérieures toute hauteur sont en aluminium anodisé. Le choix des matériaux établit un aspect qualitatif, pérenne, et qui s’inscrit à la fois au sein de l’environnement proche.
.Paris, France (75)
.Type : Mission partielle PC
.Calendrier : Janvier 2023 - PC en cours
.Surface : 50m²
.Budget : NC








