Chili case 98
Rénovation d’une maison chilienne
La case 98 est un exemple typique de cabanon préfabriqué des années 1990 au Chili. Ce type de construction symbolise l’essor et l’importance de l’industrie agro forestière dans cette région du pays. Ces habitations en bois sont extrêmement légères et souples, très rapides à fabriquer.
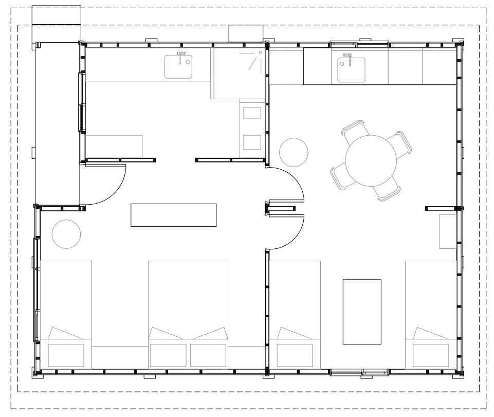
Cependant, la construction initiale n’était constituée que de pièces “sèches” : trois chambres et un salon. Le projet vise donc à repenser l'espace intérieur du cabanon pour pouvoir y implanter une cuisine et une salle de bain, en limitant au maximum l’impact sur l’enveloppe et la structure de la construction.
La cloison entre les deux chambres principales a été enlevée : un portique a été mis en place pour compenser cette perte structurelle. L’espace créé devient alors le nouveau salon, avec cuisine ouverte. La salle de bain s’implante quant à elle à la place de la plus petite chambre.
L’ensemble de la réalisation a été mené en autoconstruction le temps d’une semaine avec une constante recherche de simplicité et d’efficacité dans la mise en œuvre.
.Cerro Parra, Chili
.Type : Mission complète
.Calendrier :
Octobre 2021 - Décembre 2021
.Surface : 42m²
.Budget : 3000 € HT








