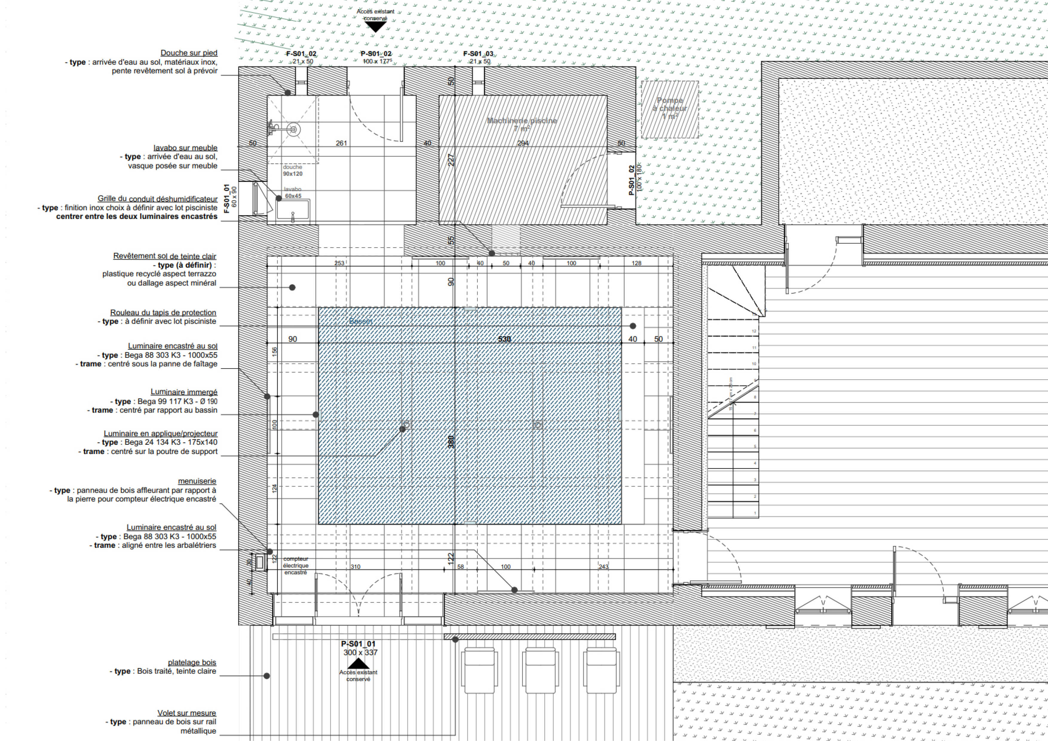
Bassin breton
Réhabilitation d’une ancienne grange en piscine intérieure
La grange fait partie du volume global de la maison existante, elle est attenante à la partie habitée et dispose d’une porte d’accès existante.
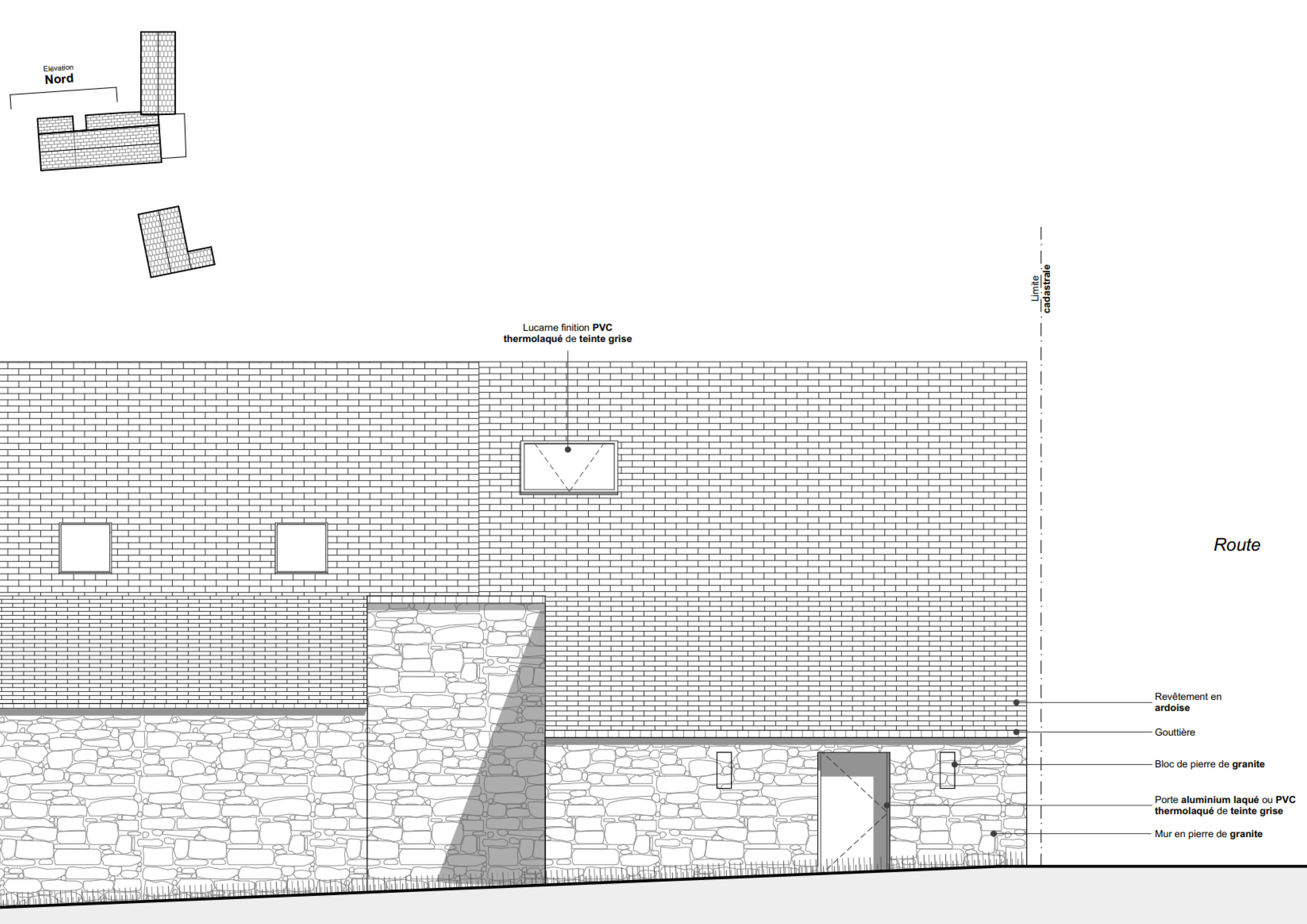
Dès le début de la conception, la recherche de lumière dans ce volume sombre a été couplée avec la redéfinition de ses accès. Ainsi, des transparences ont été établies entre la maison habitée et la future piscine intérieure. De même que la mise en place de larges baies vitrées. La surface vitrée a été largement priviliégiée dans la réflexion des façades.
L’usage de matériaux contemporains et durables ont également été privilégiés. L’aspect brut de l’aluminium et du bois est intemporel et continuera de vieillir dans le temps de manière harmonieuse avec le reste de la maison.
La création du bassin a soulevé la gestion de contraintes structurelles, thermiques, hydrauliques, qui ont été directement traitées avec les entreprises.
.Epiniac, France (35)
.Type : Mission complète
.Calendrier :
Novembre 2020 - chantier en cours
.Surface : 55m²
.Budget : 70 000 € HT









